10221

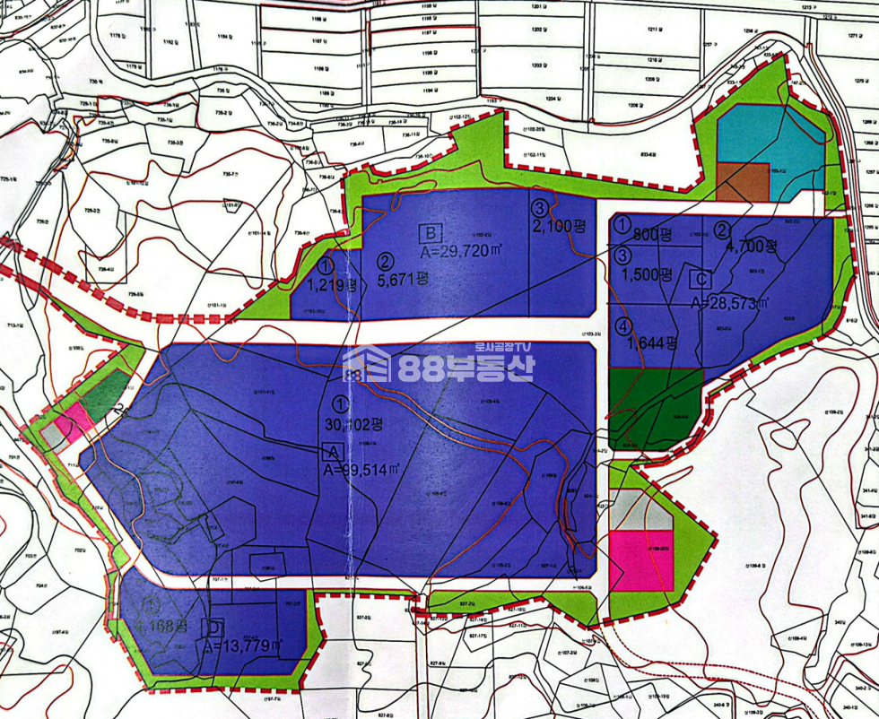
사곡지구 도시관리계획(지구단위계획구역) 결정 일반 공장단지, 약 50000평에서 ...

사곡지구 도시관리계획(지구단위계획구역) 결정 일반 공장단지, 약 50000평에서 원하시는 면적 대로 분할

주요정보 Major Information

230
총면적 토지 2,003㎡ 606평
필지1개
용도지역 계획관리지역

기본정보 Basic Information
화살표
분양230만원

경기 화성시 장안면 사곡리
분양
토지·공장부지 매매
1개
2,003㎡ 606평
공장부지매매

옵션 Option Information
화살표

트레일러 진입 가능
공장 등록 가능

상세설명 Detail Information
화살표

* 조암IC 10km , 서평택IC 12km차량 거리 10분내외 접근 가능

* 약 50000평에서 원하시는 면적대로분할 가능

* 평당 230만원

* 계약 후 토목공사 시작 ~ 약 8개월 소요 됨

* 건폐율 , 용적률  인센티브 면적 가능

* 도로 지분 기부채납으로 도로지분 없는 알땅 매매

* 77번국도에서 8~10m 진입도로로 공장 단지 진입

인근 버스(주변 500m 이내) Bus Station
화살표

경기 20 490m 경기 4 490m 경기 4-1 490m
경기 20(두레자연중고교·경기)
490m
경기 4(두레자연중고교·경기)
490m
경기 4-1(두레자연중고교·경기)
490m

위치 및 주변 편의시설 Map & Facillity
화살표

편의시설
안전시설
교육시설
지하철
버스
편의점
카페
은행
관공서
학교
학원
병원
약국
영화관
경찰
CCTV
어린이집
유치원
초등학교
중학교
고등학교
대학교
학원

화성시의 다른매물 Another Information
화살표

경기 화성시 장안면
475,000
공장·창고 매매 방 2개 / 화장실 4개
경기 화성시 마도면
284,000
공장·창고 매매 화장실 3개
경기 화성시 우정읍
28
공장·창고 매매 화장실 1개
경기 화성시 남양읍
3,000 · 300
공장·창고 임대 화장실 1개
경기 화성시 장안면
5,500 · 550
공장·창고 임대 화장실 1개
경기 화성시 정남면
5,300 · 530
공장·창고 임대 화장실 1개
경기 화성시 장안면
2,500 · 230
공장·창고 임대 화장실 1개
경기 화성시 팔탄면
265,000
공장·창고 매매 화장실 2개
경기 화성시 정남면
102,000
공장·창고 매매 화장실 1개
경기 화성시 정남면
115,000
공장·창고 매매 화장실 1개
경기 화성시 정남면
102,000
공장·창고 매매 화장실 1개
경기 화성시 팔탄면
733,750
토지·공장부지 매매
경기 화성시 팔탄면
1,200 · 120
공장·창고 임대 화장실 1개
경기 화성시 남양읍
26
토지·공장부지 매매
경기 화성시 마도면
25
공장·창고 매매 방 2개 / 화장실 2개
경기 화성시 팔탄면
2,500 · 250
공장·창고 임대 화장실 1개
경기 화성시 팔탄면
3,000 · 300
주택·상가·기타 화장실 2개
경기 화성시 비봉면
2,800 · 280
공장·창고 매매 화장실 1개
경기 화성시 비봉면
2,500 · 250
공장·창고 임대 화장실 1개
경기 화성시 비봉면
9,000 · 900
공장·창고 임대 방 1개 / 화장실 2개
담당자 정보

박로사 대표

88공인중개사사무소 - 박로사 대표
소재지 : 경기도 화성시 팔탄면 시청로739번길 33, 103호
중개등록번호 : 41590-2025-00109
화성 평택 공장 창고 토지 전문

주요정보 Major Information

230
총면적 토지 2,003㎡ 606평
필지1개
용도지역 계획관리지역
88공인중개사사무소

박로사 대표

부동산등록번호 41590-2025-00109

소재지 경기도 화성시 팔탄면 시청로739번길 33, 103호

전화번호 010-7271-8685

핸드폰번호 010-7271-8685

화성 평택 공장 창고 토지 전문

본매물
10125
향남읍
22(부가세 별도)
10217
장안면
5,500550
10215
장안면
2,500230
10211
정남면
102,000